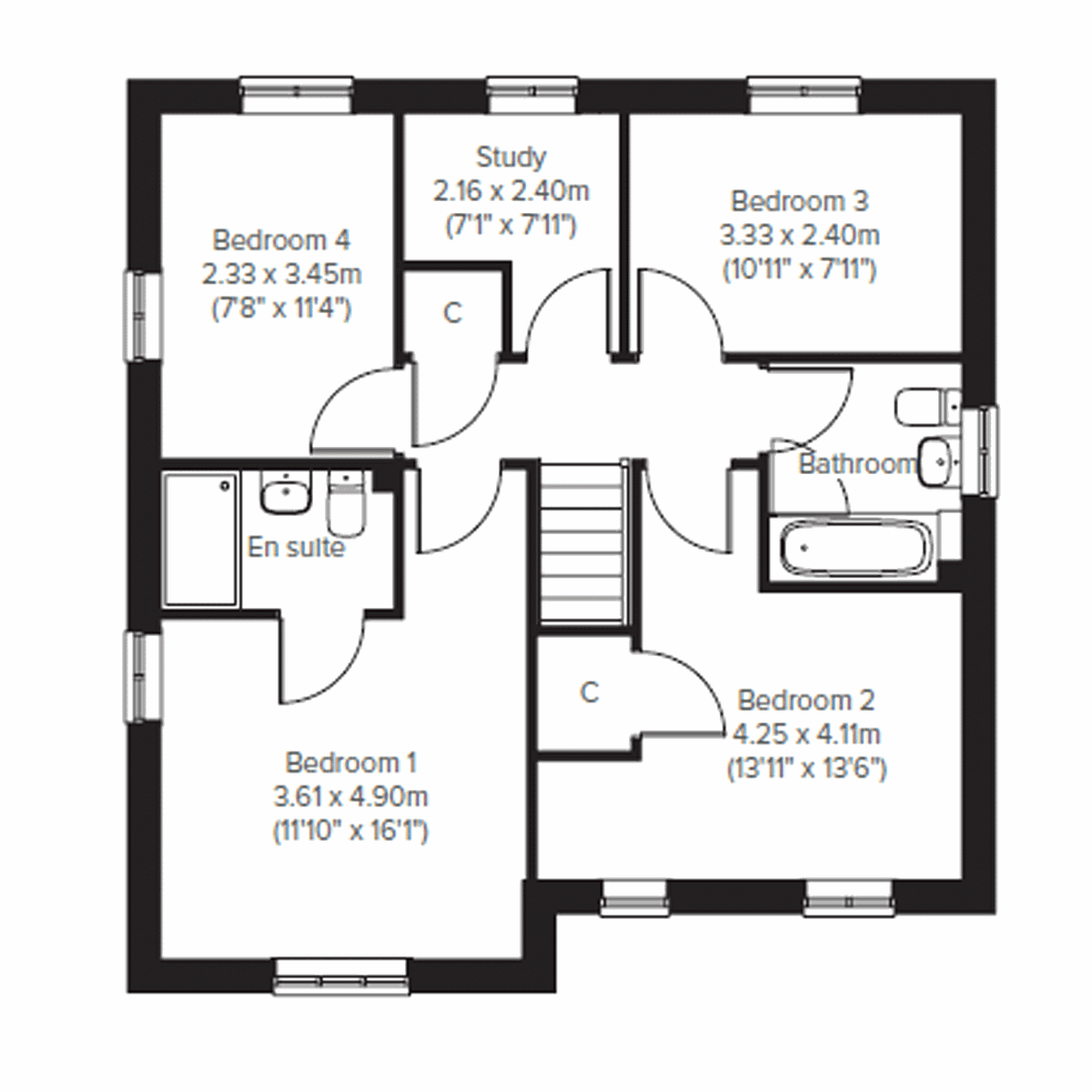
The Lambridge is a four-bedroom family home. The spacious kitchen/family/dining room enjoys an open aspect through French doors to the rear garden. There’s a bright front-aspect living room with a bay window, a downstairs WC and handy utility. Upstairs you’ll find four bedrooms - bedroom one benefiting from an en suite - plus a convenient study, modern-fitted family bathroom and two storage cupboards.

Our Customer Hub is now:
Closed -
Opens at 10am on Saturday

Opening Times:

Monday 11am - 6pm
Tuesday Closed
Wednesday Closed
Thursday 10am - 5pm
Friday 10am - 5pm
Saturday 10am - 5pm
Sunday 10am - 5pm
4 bedroom + study detached home
Impressive kitchen/family/dining room with French doors to garden
En suite to bedroom 1
Downstairs WC and utility room with side access

Plot 786 Overview

Price £453,000
Status Available
Bedrooms 4
Bathrooms 2
Parking Single Garage
Freehold or Leasehold Freehold
Predicted Energy Assessment Rating -
Address NR31 9YW

Further information about additional costs payable (in addition to any advertised headline price for a Persimmon new home) can be found by clicking here.

Floor plans for The Lambridge at Bluebell Meadow |

Ground Floor

+ -
Floor plan of a four bed at Persimmon Home development with open plan dining/Family room
Room Metres Feet & Inches
Dining/Family room 4.72m x 3.35m 15' 5" x 11' 0"
Kitchen 3.28m x 3.88m 10' 9" x 12' 9"
Living room 3.61m x 4.95m 11' 10" x 16' 3"
Disclaimer

Bluebell Meadow Site Plan

Site plan Disclaimer

Mortgage Calculator

Bluebell Meadow Information

Sea, sand and sports

The local area has three 18-hole golf courses and a superb selection of sports and leisure activities for everyone to enjoy, including the Phoenix Pool in Bradwell and the Marina Centre in Great Yarmouth.

Take a short trip inland and you can explore the peaceful Norfolk Broads in hire day boats and canoes. And on your doorstep, the wide open skies and beautiful rolling Norfolk countryside await.

All you need

Bradwell has everything you need close to hand with a Tesco Express, Co-op and Morrisons stores conveniently placed nearby for groceries.

For more shopping choices, such as Gapton Hall Retail Park, Gorleston and Great Yarmouth are close by. Plus, the historic city of Norwich is less than 30 miles away and is home to some of the UK’s finest shops and eateries.

You’re also conveniently close to doctors’ surgeries, dentists, chemists, a Post Office, petrol filling stations, pubs and a range of educational facilities for all ages.

School days

For little ones, you have a range of choices including Woodlands Primary Academy, which is one mile away, and Ormiston Venture Academy, which is two miles from Bluebell Meadows.

Perfect for creative young adults, Norwich University of the Arts is a short journey away.

Bluebell Meadow

12 Beaufort Wy, Great Yarmouth, NR31 9FZ

Get Directions

Similar Plots Available

Plot 779 - The Kielder

4 bedroom + study detached house
£460,000
Modern open plan kitchen/family room with French door leading into the garden
Bright and spacious front-aspect living room
Bedroom 1 with en suite
View plot information

Plot 807 - The Kielder

4 bedroom + study detached house
£460,000
Modern open plan kitchen/family room with French door leading into the garden
Bright and spacious front-aspect living room
Bedroom 1 with en suite
View plot information

Plot 808 - The Kielder

4 bedroom + study detached house
£460,000
Modern open plan kitchen/family room with French door leading into the garden
Bright and spacious front-aspect living room
Bedroom 1 with en suite
View plot information