A perfectly-proportioned detached home, the St Clement’s bright kitchen/dining room with bi-fold doors to the garden, is perfect for spending time as a family and for entertaining. There’s also an equally impressive living room with bi-fold doors and a bay window, a downstairs WC, two cupboards and handy dual-aspect study. Upstairs there are four bedrooms - bedroom one with an en suite - and a modern family-sized bathroom.

Our Customer Hub is now:
Closed -
Opens at 10am on Thursday

Opening Times:

Monday Closed
Tuesday Closed
Wednesday Closed
Thursday 10am - 5pm
Friday 10am - 5pm
Saturday 10am - 5pm
Sunday 10am - 5pm
4 bedroom + study detached home
Open-plan kitchen/dining room with bi-fold doors to the garden
Equally impressive living room with bi-fold doors and bay window
Dual-aspect study, downstairs WC and storage throughout

Plot 53 Overview

Price £585,000
Status Available
Bedrooms 4
Bathrooms 2
Parking Driveway
Freehold or Leasehold Freehold
Predicted Energy Assessment Rating -
Address CO5 0LX

Further information about additional costs payable (in addition to any advertised headline price for a Persimmon new home) can be found by clicking here.

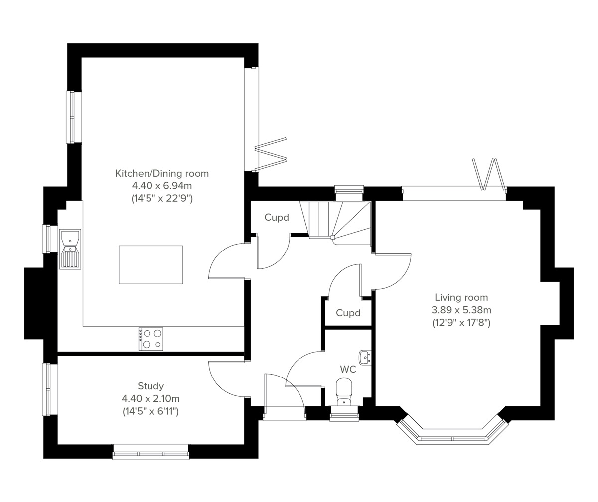
Floor plans for The St Clement at Scarlett Mews |

Ground Floor

+ -
Ground Floor floor plan
Room Metres Feet & Inches
Kitchen/Dining room 4.4m x 6.94m 14' 5" x 22' 9"
Living room 3.88m x 5.38m 12' 9" x 17' 8"
Study 4.39m x 2.1m 14' 5" x 6' 11"
Disclaimer

Plot Schemes and Offers

Scarlett Mews Site Plan

Site plan Disclaimer

Mortgage Calculator

Scarlett Mews Information

Local shopping

For your local shopping trips, Tiptree’s High Street offers a great range of independent shops. There’s a Tesco Superstore just over a mile away, and an Asda and Iceland on hand too. There’s even a garden centre within walking distance, where you can enjoy choosing plants for your new garden. If you want to make a day of it, Colchester and Chelmsford are home to all the national High Street brands.

Going to school

For young children, the ABC Nursery, and Baynards, Milldene and Saint Luke’s primary schools are all within a mile of Scarlett Mews. For teenagers, Thurstable School Sports College & Sixth Form heads up secondary education in Tiptree and is within walking distance of Scarlett Mews. There are two secondary schools in Witham, 7 miles away: New Rickstones Academy and Maltings Academy. The Colchester Institute offers further education and apprenticeships for 16+ school leavers.

Travel and transport

Two convenient local routes pass through the village, the B1022 and the B1023. The B1023 runs close to Scarlett Mews and a 10-minute drive takes you to Kelvedon for the A12 or the train station. The A12 joins the M25 at Brentwood, via Chelmsford, and in the other direction, it’s the direct route to Ipswich via Colchester. Regular train services from Kelvedon are popular with commuters. The station is on the main Norwich to London Liverpool Street line.

Leisure time

If you like staying active there’s a Leisure World sports centre in Tiptree, or for something a bit gentler you could visit Braxted Park, Messing Park, or the Abberton Reservoir Nature Discovery Park - it’s one of Europe’s top wetland sites. Heading to the coast, the Blackwater Estuary National Nature Reserve is another peaceful place to explore. Children will love Colchester Zoo just 6 miles away, and if you live in Tiptree, the Tiptree Jam Factory is a must-visit.

Scarlett Mews

Kelvedon Road, Inworth, CO5 9SX

Get Directions

Similar Plots Available

Plot 57 - The Wilkin

4 bedroom + study detached house
£560,000
Impressive kitchen/dining room with bi-fold doors
Downstairs study, WC and utility room
Bedroom 1 with an en suite
View plot information

Plot 56 - The Wilkin

4 bedroom + study detached house
£550,000
Impressive kitchen/dining room with bi-fold doors
Downstairs study, WC and utility room
Bedroom 1 with an en suite
View plot information

Plot 55 - The Damson

4 bedroom semi-detached house
£465,000
Impressive open plan kitchen/dining/living room
Family bathroom with modern fixtures and fittings
Downstairs WC and storage throughout
View plot information