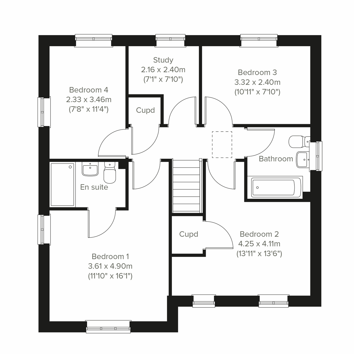
The Lambridge is a four-bedroom family home. The spacious kitchen/family/dining room enjoys an open aspect through French doors to the rear garden. There’s a bright front-aspect living room with a bay window, a downstairs WC and handy utility. Upstairs you’ll find four bedrooms - bedroom one benefiting from an en suite - plus a convenient study, modern-fitted family bathroom and two storage cupboards.

Our Customer Hub is now:
Closed -
Opens at 10am on Wednesday

Opening Times:

Monday 10am - 5pm
Tuesday 10am - 5pm
Wednesday 10am - 5pm
Thursday 10am - 5pm
Friday 10am - 5pm
Saturday 10am - 5pm
Sunday 10am - 5pm

 

What 3 words: optimists.surface.muffin

4 bedroom + study detached home
Bedroom 1 includes an en suite
Good sized bedrooms
Study/home office

Plot 1022 Overview

Price £475,000
Status Available
Bedrooms 4
Bathrooms 2
Parking Single Garage
Freehold or Leasehold Freehold
Predicted Energy Assessment Rating -
Address SP2 9FA

Further information about additional costs payable (in addition to any advertised headline price for a Persimmon new home) can be found by clicking here.

Floor plans for The Lambridge at St Peters Place |

Ground Floor

+ -
Ground Floor floor plan
Room Metres Feet & Inches
Family/Dining room 4.94m x 3.35m 16' 3" x 11' 0"
Kitchen 3.05m x 3.87m 10' 0" x 12' 9"
Living room 3.61m x 4.97m 11' 10" x 16' 4"
Disclaimer

St Peters Place Site Plan

Site plan Disclaimer

Mortgage Calculator

St Peters Place Information

Lots nearby

This development is a special collection of homes because it offers the opportunity to be part of a thoughtfully designed new community. Built to complement its existing surroundings, whilst conserving and enhancing the natural environment, it'll also offer new amenities. These will include facilities for new shops, a new primary school and enhanced academy provision, large areas of open green space, sports pitches and a network of footpaths and cycle ways.

Local shopping

Along with proposed local shops on your doorstep, Salisbury's city centre and its attractive medieval streets make an excellent place to shop. There are hundreds of stores; small and large, national brands and independent, meaning there's something for everyone. There are also three shopping centres and a fantastic market in the main square.

Days out nearby

For those who enjoy getting out and about, St Peters Place offers endless outdoor leisure opportunities, from boating on the beautiful River Avon to walking and mountain biking across Salisbury Plain and in the surrounding countryside. Nearby Old Sarum Castle is a must-visit - an enormous Iron Age hill fort which became a medieval settlement and now contains the ancient ruins of a large castle – perfect for explorers of all ages.

Convenient transport link

This is a good location for commuters, with convenient links to both the A36 and A303. Access to Salisbury City centre via the A360 is also easy. To avoid city centre traffic, the city's park and ride is very convenient, and there are cycle lanes in and around the city. For those looking to go further afield, Salisbury is ideally located with easy access to Bristol to the west, Bournemouth on the coast, and Basingstoke, Winchester, Portsmouth and London to the east.

St Peters Place

57 Adlam Way, Salisbury, SP2 9FA

Get Directions

Similar Plots Available

Plot 1004 - The Barnwood

3 bedroom detached house
£405,000
Open plan kitchen/dining room
Living room with French doors
En suite to bedroom 1
View plot information

Plot 998 - The Barnwood

3 bedroom detached house
£400,000
Modern open plan kitchen/dining room
Bedroom 1 includes an en suite
Utility with outside access
View plot information

Plot 999 - The Barnwood

3 bedroom detached house
£400,000
Open plan kitchen/dining room
Living room with French doors
En suite to bedroom 1
View plot information