Enjoy the best of modern living in the two-bedroom Akenham apartment, benefiting from a bright open plan kitchen/dining/living room with a balcony, a good-sized bedrooms and two handy storage cupboards. Perfect for first-time buyers and young professionals, or as an investment opportunity.

Our Customer Hub is now:
Open -
Closes at 6pm

Opening Times:

Monday 11am - 6pm
Tuesday Closed
Wednesday Closed
Thursday Closed
Friday 11am - 12pm
Saturday 11am - 6pm
Sunday 11am - 6pm

Please note that the sales office will be closed on Thursday the 19th February for staff training. It will be open as normal from 11Am on Friday the 20th February.

2 bedroom apartments
Perfect for first time buyers
Allocated parking
New local amenities, including a school, shops and businesses

Plot 101 Overview

Price £215,000
Status Available
Bedrooms 2
Bathrooms 1
Parking Allocated Parking
Freehold or Leasehold Leasehold
Predicted Energy Assessment Rating -
Address -

Further information about additional costs payable (in addition to any advertised headline price for a Persimmon new home) can be found by clicking here.

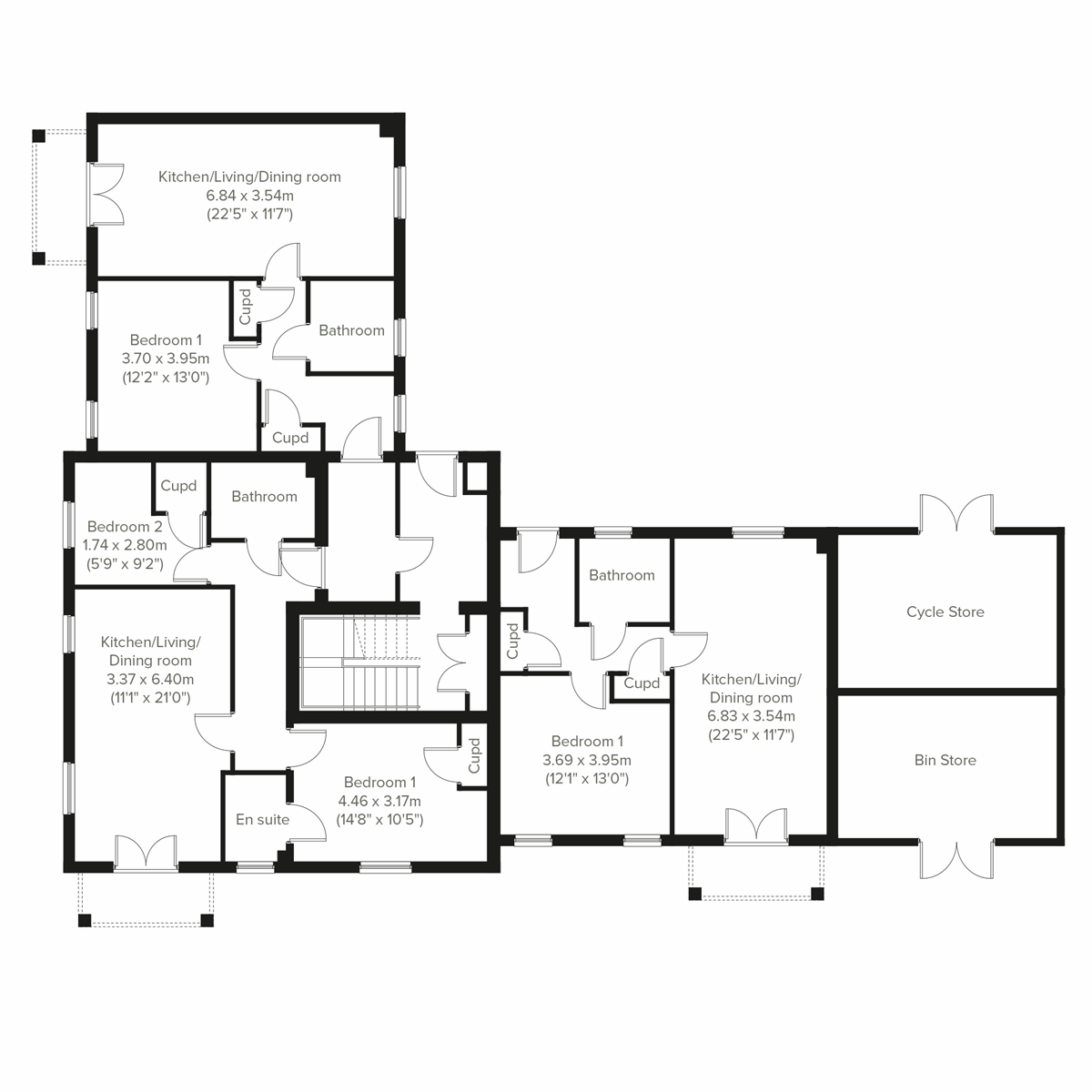
Floor plans for The Akenham at Boyton Place |

Ground Floor

+ -
Ground Floor floor plan
Room Metres Feet & Inches
Kitchen/Dining/Living room 3.37m x 6.4m 11' 1" x 21' 0"
Bedroom 1 4.56m x 3.17m 15' 0" x 10' 5"
Bedroom 2 1.74m x 2.8m 5' 9" x 9' 2"
Disclaimer

Plot Schemes and Offers

Boyton Place Site Plan

Site plan Disclaimer

Mortgage Calculator

Boyton Place Information

Plenty to do nearby

There's plenty to do nearby. East Town Park Countryside Centre is open daily and has a brand new children's activity park and a picnic area. The Arts Centre, housed within the Grade 2 listed town hall, has a cinema and theatre, presenting live music, drama, dance and comedy shows. The town also offers a variety of sports clubs and activities, including two non-league football teams, cricket, rugby, baseball, angling, a dance school and a skate park. The town also has a five-screen cinema, a leisure centre with a swimming pool, gym and children's soft play area and an 18-hole golf course.

Local shopping

There's a great choice of restaurants in the town centre and surrounding areas, including the bigger chains such as Frankie & Benny's and Prezzo, as well as smaller independent bistros and tea rooms. For shopping, there are many well-known high street stores, independent retailers and supermarkets. The town centre is partially pedestrianised, and a market is held every Friday and Saturday in the Market Square.

A great education for all

There's a good choice of primary schools in Haverhill, including Burton End Community School, Clements Community School, Compals, New Cangle Community School, Place Farm Community School, Ridgewell School, St Felix RCVA School and Westfield Community School. Secondary schools include The Samuel Ward Academy which has an 'outstanding' Ofsted report, as does Linton Village College which is 5.7 miles away.

Boyton Place

3 Beavis Dr, Haverhill, CB9 7JA

Get Directions

Similar Plots Available

Plot 106 - The Flatford

2 bedroom coach house
£240,000
Juliet balcony
Modern open plan living
En suite to bedroom two
View plot information

Plot 107 - The Flatford

2 bedroom coach house
£260,000
Spacious open plan kitchen/dining/living room
En suite to bedroom 2
Car port
View plot information

Plot 103 - The Salcey

1 bedroom flat
£195,000
Open plan kitchen/dining/living room
Balcony
Storage cupboards
View plot information