The Barnwood is a good-looking double-fronted detached home that will catch your eye if you are looking for more space for your growing family. Or maybe you want to downsize, but still have room for friends and family to stay. Either way, this could be the ideal place to call home. Two sociable living spaces, three bedrooms and two bathrooms will certainly help you to do that.

Our Customer Hub is now:
Closed -
Opens at 10am on Wednesday

Opening Times:

Monday 1pm - 5pm
Tuesday 10am - 5pm
Wednesday 10am - 5pm
Thursday 10am - 5pm
Friday 10am - 5pm
Saturday 10am - 5pm
Sunday 10am - 5pm

SHOWHOME VISITS

Looking for inspiration and want to see the quality of our stunning homes first hand?

No appointment needed to visit us.

We look forward to seeing you soon.

what3words address waddled.handy.lives

3 bedroom detached home
Generously sized corner home
Large garden
Solar panels

Plot 810 Overview

Price £360,000
Status Available
Bedrooms 3
Bathrooms 2
Parking Allocated Parking
Freehold or Leasehold Freehold
Predicted Energy Assessment Rating -
Address -

Further information about additional costs payable (in addition to any advertised headline price for a Persimmon new home) can be found by clicking here.

Floor plans for The Barnwood at Persimmon @ Haywood Village |

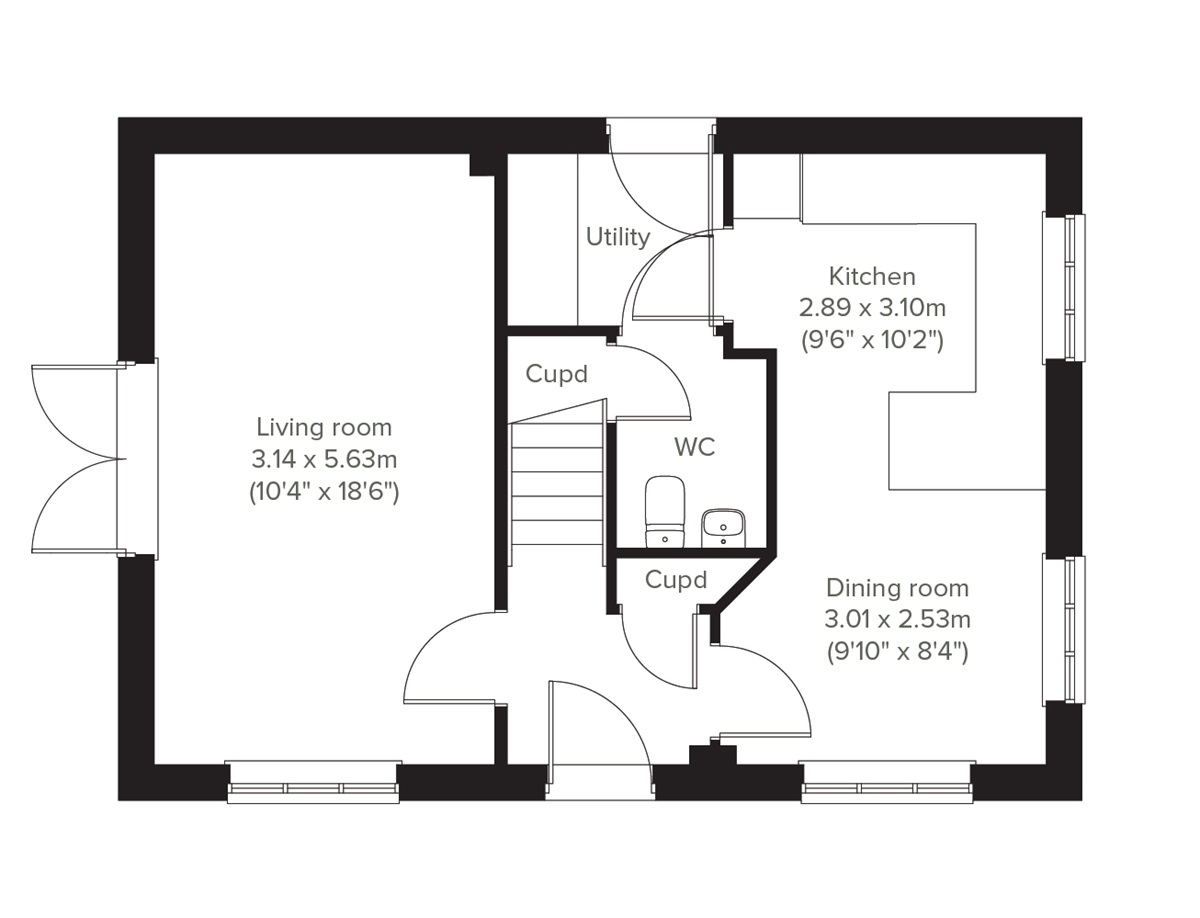
Ground Floor

+ -
Ground Floor floor plan
Room Metres Feet & Inches
Kitchen 2.89m x 3.1m 9' 6" x 10' 2"
Dining room 3.01m x 2.53m 9' 10" x 8' 4"
Living room 3.14m x 5.63m 10' 4" x 18' 6"
Disclaimer

Plot Schemes and Offers

Explore this home in 360

Experience the inside of our homes.

View this 360 tour

Persimmon @ Haywood Village Site Plan

Site plan Disclaimer

Mortgage Calculator

Persimmon @ Haywood Village Information

Amazing schooling options

There are two primary schools for residents to enjoy right in the development, and there are other brilliant options nearby, including Haywood Village Academy. Persimmon @ Haywood village is perfectly located to access all necessary amenities, making it the ideal location for families.

Transport links

Weston-super-Mare train station is just 2.3 miles away, offering direct train links to Bristol, Cardiff and beyond. Road links via the nearby M5 allow for easy travel north towards Bristol and the Midlands or south towards Taunton and Exeter. For international travel, Bristol Airport is just a 27-minute drive away.

Shopping and leisure

Weston-super-Mare is home to several retail parks and supermarkets. Lidl is less than a mile away, while Asda is just 12 minutes by car. The vibrant town centre also offers a variety of local shops, bars, restaurants and cafes. The famous Grand Pier offers plenty of activities alongside museums and sports facilities throughout the town.

Persimmon @ Haywood Village

83P3+JH Weston-super-Mare, Weston-super-Mare,

Get Directions

Similar Plots Available

Plot 831 - The Charnwood

3 bedroom detached house
£360,000
Move in for summer
Generously sized corner home
Detached home
View plot information

Plot 857 - The Charnwood

3 bedroom detached house
£355,000
Overlooking green spaces
Large garden
Dual-aspect living room
View plot information

Plot 832 - The Ashdown

3 bedroom + study semi-detached house
£330,000
Kitchen/dining room with French doors leading into the garden
First floor living room with balcony
En suite to bedroom 1
View plot information