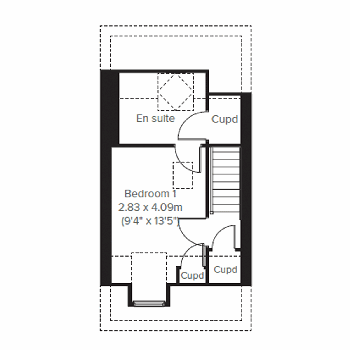
An attractive three-storey home, the Saunton has an open-plan kitchen/dining room, a living room and three bedrooms. The top floor bedroom has an en suite. The enclosed porch, downstairs WC, three storage cupboards and off-road parking mean it's practical as well as stylish. 

Our Customer Hub is now:
Closed -
Opens at 10am on Thursday

Opening Times:

Monday 10am - 5pm
Tuesday Closed
Wednesday Closed
Thursday 10am - 5pm
Friday 10am - 5pm
Saturday 10am - 5pm
Sunday 10am - 5pm

 

Find us with what3words - timeless.ruling.stars

3 bedroom semi-detached home
Second floor bedroom 1 with en suite
Modern open plan kitchen/dining room
Downstairs WC

Plot 76 Overview

Price £310,000
Status Available
Bedrooms 3
Bathrooms 2
Parking Allocated Parking
Freehold or Leasehold Freehold
Predicted Energy Assessment Rating -
Address SP7 8DA

Further information about additional costs payable (in addition to any advertised headline price for a Persimmon new home) can be found by clicking here.

Floor plans for The Saunton at Saxon Grange |

Ground Floor

+ -
Ground Floor floor plan
Room Metres Feet & Inches
Kitchen 2.19m x 3.34m 7' 2" x 11' 0"
Dining room 1.7m x 2.28m 5' 7" x 7' 6"
Living room 3.89m x 3.99m 12' 9" x 13' 1"
Disclaimer

Plot Schemes and Offers

Explore this home in 360

Experience the inside of our homes.

View this 360 tour

Saxon Grange Site Plan

Site plan Disclaimer

Mortgage Calculator

Saxon Grange Information

Idyllic location with a range of amenities

Shaftesbury provides ample retail offerings, with everything you need for day-to-day life and more. High street brands include Boots, Holland & Barratt and several banks, and there's a Tesco superstore less than a mile from the development. The town is also awash with independently-owned stores, from gift shops and greengrocers, to florists and fashion boutiques, along with a range of tempting cafes, bars and restaurants, plus the excellent deli. The weekly market is full of edible delights, and the local medical centre and hospital are a reassuring presence.

Active local community

Moving to Shaftesbury you'll be joining a friendly and vibrant community, with a host of events and attractions. Support local artists at Swans Yard, enjoy theatre, comedy, films, music and workshops at Shaftesbury Arts Centre, visit Shaftesbury Abbey Museum for some history, or take a peaceful walk through the Abbey gardens. Leisure facilities include the tennis club, leisure pool, gyms, sports clubs and snooker halls. Last but not least, the annual Festival of Food and Drink is a chance to enjoy local produce and craft, live music, a band, dancing, and the famous Cheese Racing on Gold Hill.

Education for all

Families with children will be well-catered for thanks to Shaftesbury's selection of schools. There are several nurseries in the town, and Shaftesbury CofE Primary School and The Abbey CofE Primary School are both less than a half-hour walk away. Just 0.4 miles away from Saxon Grange is Shaftesbury School, a secondary school and sixth form which also offers boarding, and the neighbouring town of Gillingham, around 5 miles away, hosts more primary schools and a secondary school.

Handy transport links

Though its beautiful setting is one of its main draws, Shaftesbury does benefit from good road links – set between Yeovil and Salisbury, both large towns are around a 45-minute drive away. There's also a good local bus network, which includes routes to the nearest train station 4 miles away in Gillingham. From there you can catch direct trains to Yeovil, Salisbury, Exeter and even London Waterloo (2 hours).

Saxon Grange

New Caravan Site, Shaftesbury, SP7 8QB

Get Directions

Similar Plots Available

Plot 88 - The Barnwood

3 bedroom detached house
£335,000
Three generous size bedrooms
Bedroom 1 includes an en suite
Utility with outside access
View plot information

Plot 49 - The Sherwood

3 bedroom detached house
£335,000
Bright kitchen/dining room with French doors into the garden
Utility room
Bedroom 1 includes an en suite
View plot information

Plot 50 - The Barnwood

3 bedroom detached house
£345,000
Modern open plan kitchen/dining room
Bedroom 1 includes an en suite
Utility with outside access
View plot information